Planning & Design in Lewes
Planning and design support in Lewes to streamline approvals.
From Concept To Approval
Streamline planning and design in Lewes and East Sussex with coordinated support. We prepare drawings, advise on policy and permitted development, submit applications, and liaise with Lewes District Council.
Transparent pricing, scheduled milestones, and clear communication ensure a smooth, predictable process from concept to decision.
- Permitted development and policy advice
- Accurate drawings and documentation
- Council liaison through to approval
See What Our Lewes Clients Say
Colin is intelligent, personable, honest, straight forward and very hardworking. He is a skilled builder, solution finder and manager of people. During the six months that I spent working closely with him, he led the construction of our fantastic extension, building relationships with all involved parties — neighbours, architects, tradespeople, building control officers and many others.
Colin is intelligent, personable, honest, straight forward and very hardworking. He is a skilled builder, solution finder and manager of people.
I’d wholeheartedly recommend Colin. He did some major work on our house. He kept to budget and kept us completely involved with progress. He has a great team and we couldn’t have wished for a more hassle-free piece of work or a better result.
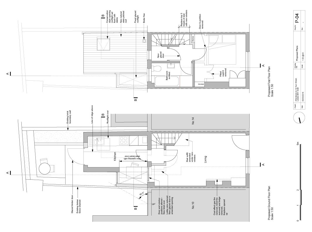
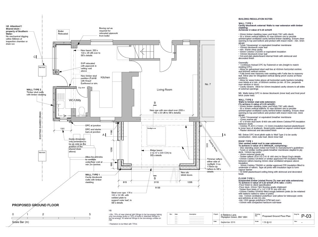
Lewes Planning & Design Project Gallery
Why Choose Us for Planning Services?
Experienced & Fully Insured
Professional support through planning, building regs and structural compliance.
Clear, Predictable Costs
Transparent pricing for drawings, applications and planning submissions.
Smooth, Managed Process
From concept drawings to submission, we handle every stage professionally.
Start With Planning & Design
We’ll guide you from initial concept to approved plans.
Get A Free Estimate